客變前
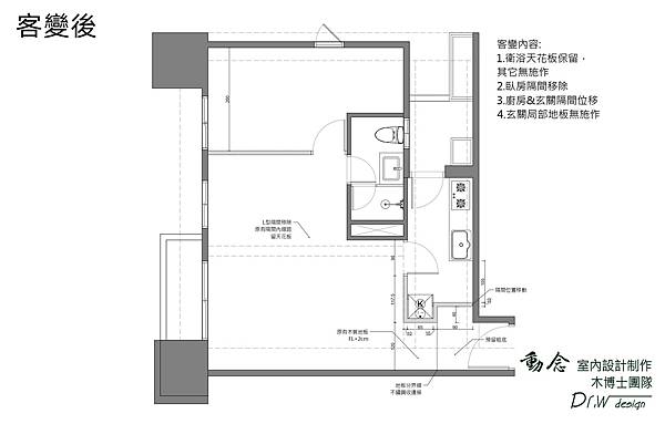
1.屋主將玄關右側原凹洞縮小,將多餘空間讓於廚房運用。
2.將原房間隔間牆及門的部分移除,改成開放式書房



完工後3D
玄關:右側原深度70cm的凹洞,後來客變縮小成40cm,已足夠鞋櫃使用,將多餘空間讓於廚房運用。

客廳:沙發後房間改成半開放書房空間,使空間看起來更為寬敞


書房:原本的房間改成開放式書房,窗邊設計抽屜式臥榻,除了增加收納功能還多一處放鬆自在空間

主臥:床頭牆面運用淺木紋系統板做成床背護板,再搭配莫蘭迪藍色調色漆,簡單營造飯店式休閒風格

客變前
1.屋主將玄關右側原凹洞縮小,將多餘空間讓於廚房運用。
2.將原房間隔間牆及門的部分移除,改成開放式書房



完工後3D
玄關:右側原深度70cm的凹洞,後來客變縮小成40cm,已足夠鞋櫃使用,將多餘空間讓於廚房運用。

客廳:沙發後房間改成半開放書房空間,使空間看起來更為寬敞


書房:原本的房間改成開放式書房,窗邊設計抽屜式臥榻,除了增加收納功能還多一處放鬆自在空間

主臥:床頭牆面運用淺木紋系統板做成床背護板,再搭配莫蘭迪藍色調色漆,簡單營造飯店式休閒風格

請先 登入 以發表留言。